LIFEデザイン北海道株式会社

  • 当社について
  • 事業内容
  • 物件情報
  • アクセス
  • ブログ
  • お問い合わせ
  • よくある質問

CLOSE
  • 当社について
  • 事業内容
  • 物件情報
  • アクセス
  • ブログ
  • お問い合わせ
  • よくある質問
  • FOLLOW US:

物件情報 CASE

物件情報

  • ALL
  • 札幌市西区
  • 札幌市中央区
  • 札幌市豊平区
  • 札幌市白石区
  • 江別市
  • 札幌市東区
  • 札幌市手稲区
  • 札幌市厚別区
  • 札幌市北区
  • 小樽市

札幌市西区

宮の沢モデルハウス|暮らしに合わせて間取りが変わる可変型住宅

最寄駅:地下鉄東西線「宮の沢」駅 徒歩13分

価格:4930万円

◆選び抜いたおすすめの住環境◆
ファミリーにもビジネスマンにもおすすめ。
小・中学校、認定こども園、公園が身近に揃う、子育て世帯に嬉しい立地。
前面道路は車通りがほとんどなく、閑静な住宅街が広がります。
地下鉄東西線「宮の沢」駅まで徒歩約13分。
駅周辺にはスーパーなど生活利便施設も揃っており、
地下鉄利用の通勤・通学や買い物にも便利な立地。
発寒イオンが近いのもおすすめのポイントです。

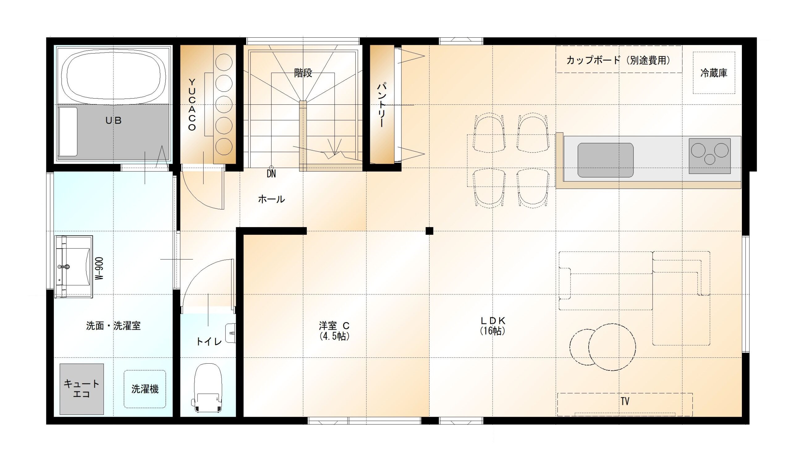
◆間取りと設備◆
2階リビングは、外からの視線を気にせず、光と風を感じられる開放的な空間。
リビング横の洋室は、あえて壁を設けず、ライフスタイルに合わせて将来間仕切りが可能な設計としています。
1階にはWIC付の主寝室と大きな納戸スペースを配置。
納戸は将来的に2部屋に分けられる可変性を持たせ、家族構成の変化にも柔軟に対応できます。

◆高断熱・高気密+YUCACOシステム◆
〈断熱等級6〉〈C値最低0.2〉の高断熱・高気密仕様。
冷暖房効率に優れ、年間を通して快適な室内環境を実現します。
全館空調のYUCACOシステムを採用し、家全体の温度差を抑えた暮らしが可能です。
あわせて空気清浄機能も備え、室内をきれいな空気が循環します。

◆初期費用不要の太陽光発電◆
太陽光パネルは「シェアでんき」との契約による屋根貸し方式を採用。
初期費用のご負担なく太陽光発電のメリットを受けられます。
15年間はメンテナンス・保証もシェアでんきが対応し、
15年後にはパネルが無償譲渡され、その後は売電収入もご自身で活用可能です。

◆建築中につき、事務所にてご案内◆
物件のご説明から資金計画までしっかりご案内させていただきます。
「まずは話を聞いてみたい」という段階でもお気軽にご相談ください。

【物件概要】
価  格:4930万円
間 取 り:2SLDK(4LDKまで対応可)
土地面積:143.60㎡(43.43坪)
建物面積:106.18㎡(32.11坪)
完成時期:2026年6月
引渡時期:要相談
構  造:木造2階建
土地権利:所有権
私道負担:無し
接道状況:北東側約8mに約7.9m接道
用途地域:第一種中高層
建蔽率/容積率:60%、200%
設  備:公営水道、本下水、オール電化
交  通:地下鉄東西線「宮の沢」駅 徒歩13分

【災害にも強く】広く開放的な玄関のある家 予約制オープンハウス開催中!


☆夏も涼しく快適☆【全館空調体験】予約制オープンハウス☆暑い夏も快適な高性能住宅
  • 【1階間取り】

  • 【2階間取り】

  • 完成予想図【2階内観①】

  • 完成予想図【2階内観②】

  • 完成予想図【2階内観③】

  • 【土地・区画図】

  • 完成予想図【外観】

お問い合わせはこちら
  1. HOME
  2. 物件情報
  3. 宮の沢モデルハウス|暮らしに合わせて間取りが変わる可変型住宅
LIFEデザイン北海道株式会社

〒001-0915
北海道札幌市北区新琴似町771-5

  • HOME
  • 当社について
  • 事業内容
  • 物件情報
  • アクセス
  • ブログ
  • お問い合わせ
  • よくある質問
  • プライバシーポリシー

© 2024 LIFEデザイン北海道株式会社